¡Varias opciones de colores y mosaicos!
Piscinas de formato rectangular con diferentes diseños de mosaicos coloridos para escoger, dándole más estilo a su área externa
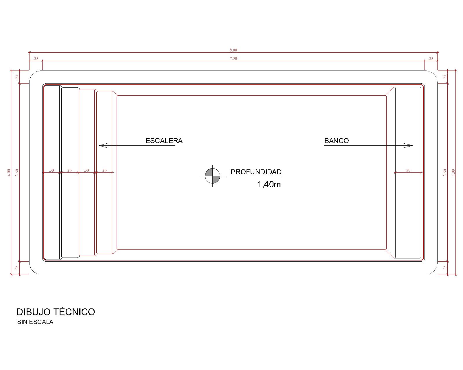
Dibujos técnicos para profesionales de la construcción:
COLOR AZUL

COLOR BLANCO

COLOR CENIZA

